007497

Новый товар

Блок АВР 30-50 кВт ПРОФ (100А)

54 720 руб.

АВР
Полное описание...

12 месяцев

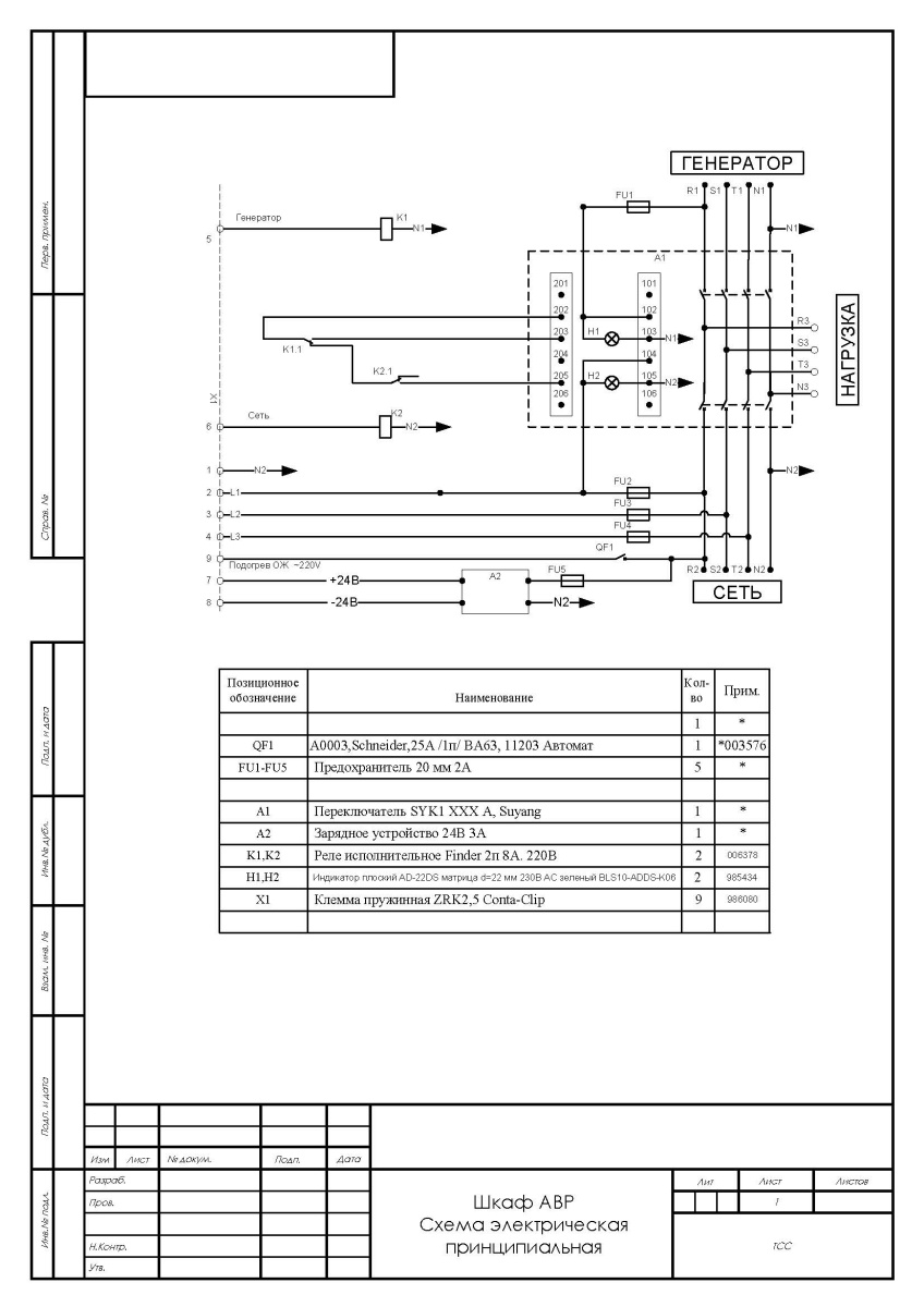
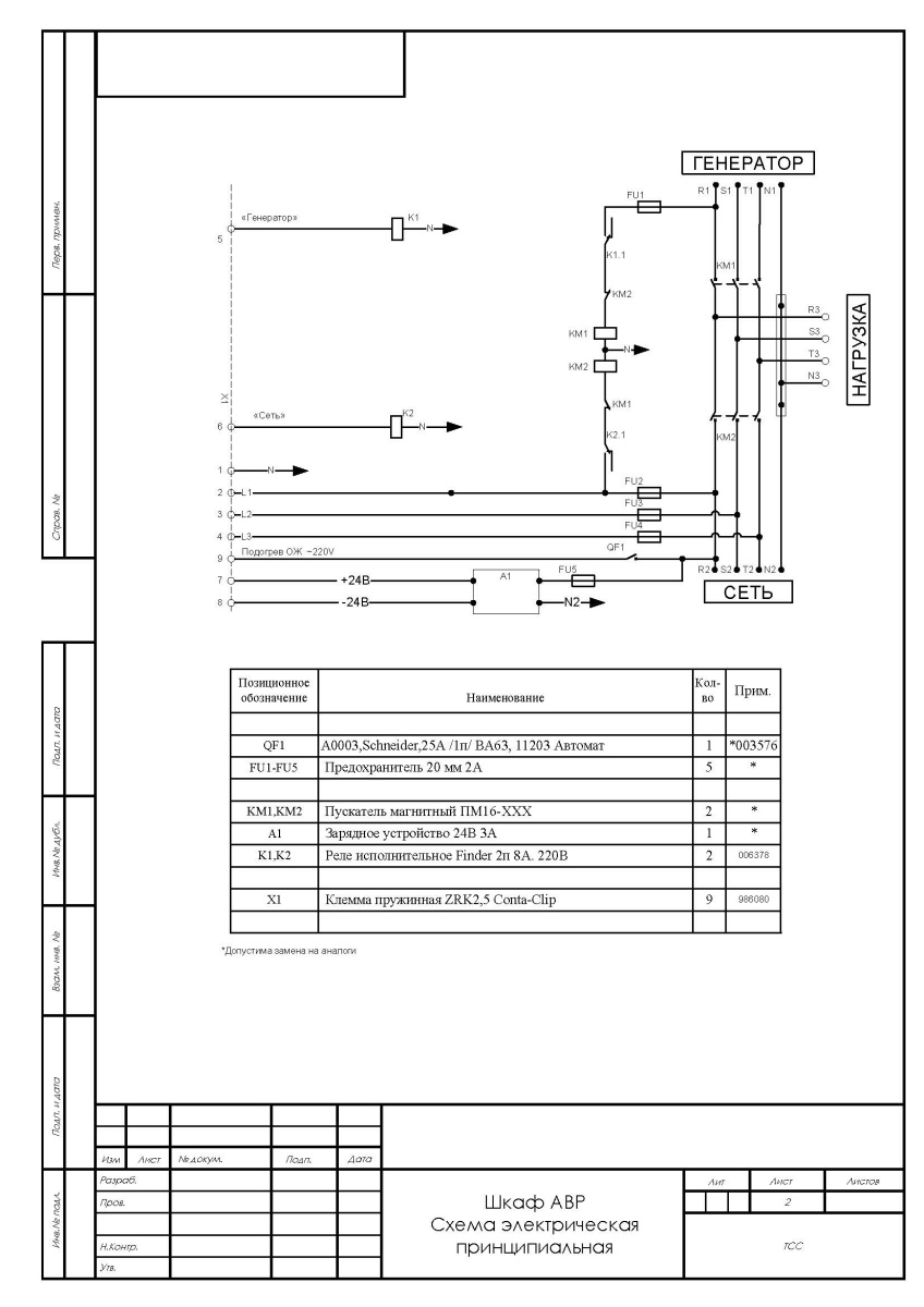
Автоматический ввод резерва (АВР) применяют для генераторных установок, которые используются в качестве резервного источника электрической энергии. Основной функцией АВР является коммутация источников электроэнергии с потребителями энергии. АВР имеет минимум два ввода: 1 ввод (основной) – ввод от основного источника электроэнергии, 2 ввод (резервный) – ввод от резервного источника электроэнергии. Вводы взаимно блокируют друг друга – один из них замкнут, другой разомкнут. В нормальном положении основной ввод замкнут и от постоянного источника (как правило это линии электропередачи) происходит снабжение потребителей. В случае попадания электропитания (или выхода качества электроэнергии за рамки установленных значений) система автоматики производит запуск генераторной установки. После выхода установки на рабочий режим, АВР производит коммутацию потребителя электроэнергии на резервный источник – генераторную установку. При появлении электроэнергии надлежащего качества на основном вводе, АВР (после установленной временной задержки) производит обратную коммутацию потребителя электроэнергии на основной источник энергии. Система автоматики производит выключение генераторной установки. Все элементы АВР размещается в металлическом корпусе. АВР является отдельным, самостоятельным устройством, не являющимся составной частью генераторной установки. Если генераторная установка изначально не имела АВР, дооборудование установки можно произвести в любое время. Автоматический ввод резерва (АВР) применяют для генераторных установок, которые используются в качестве резервного источника электрической энергии. Основной функцией АВР является коммутация источников электроэнергии с потребителями энергии.

Купить Блок АВР 30-50 кВт ПРОФ (100А) в Симферополе по цене производителя

Большой склад оборудования ТСС Крым в Симферополе, позволяет оперативно отгружать заказы в любые населённые пункты полуострова. Купить оборудование из наличия на складе в Крыму и по низкой цене можно только у нас, а для этого нужно оформить заявку на сайте или связаться со специалистами нашего отдела продаж.

ВАЖНАЯ ИНФОРМАЦИЯ ОТ ПРОИЗВОДИТЕЛЯ

Важно - Производитель оставляет за собой право без предварительного уведомления покупателя вносить изменения в конструкцию, комплектацию или технологию изготовления изделия. Обязательно уточняйте при оформлении заказа соответствие характеристик приобретаемого оборудования, т.к. данные на нашем сайте могут обновляться с задержкой относительно выпускаемой продукции.

Общие характеристики

Вес брутто (кг) 17.4
Блок зарядки АКБ да
Внешняя ссылка на изображение http://1c-upload.tss.ru/0a1903e8-8a4f-11e3-a554-00155d030626.jpg
Габаритные Размеры (Д;Ш;В; мм) 200х400х500
Гарантия, срок (мес) 12
Кол-во полюсов переключателя 4
Максимальный ток, А 100
Масса, кг 16.4
Модель Блок АВР 30-50 кВт ПРОФ (100А)
Наличие реле контроля напряжения Нет
Напряжение (В) 400
Серия ПРОФ

Запрос цены на оборудование

Нажимая на размещенную ниже кнопку, я даю согласие на обработку персональных данных в соответствии с «Политикой обработки и защиты персональных данных»

Для отправки необходимо заполнить все поля отмеченные значком ( * ) и нажать кнопку "отправить".

Запрос цены на запчасти

файл не выбран выбрать файл
Нажимая на размещенную ниже кнопку, я даю согласие на обработку персональных данных в соответствии с «Политикой обработки и защиты персональных данных»

Для отправки необходимо заполнить все поля отмеченные значком ( * ) и нажать кнопку "отправить".

Оставаясь на сайте, вы соглашаетесь на использование файлов куки и передачей данных службам веб-аналитики
Принять

Оставить заявку

Нажимая на размещенную ниже кнопку, я даю согласие на обработку персональных данных в соответствии с «Политикой обработки и защиты персональных данных»

Заявка на ремонт оборудования

выбрать файл файл не выбран
выбрать файл файл не выбран
выбрать файл файл не выбран

Защита от автоматических сообщений

CAPTCHA

Введите слово на картинке *

Нажимая на размещенную ниже кнопку, я даю согласие на обработку персональных данных в соответствии с «Политикой обработки и защиты персональных данных»